
Project 2
Construction Details
Design Process
For this project, I am tasked with obtaining the floor plan of a corner or end-lot two-storey terraced house located in Malaysia. Using this floor plan as a foundation, I need to produce a comprehensive and detailed set of architectural drawings for the house. The design will feature a reinforced concrete frame with brick infill walls on the ground floor, while the first floor will incorporate timber construction to reflect a mixed-material approach.
In addition to the structural components, I am required to design and specify other key elements of the house, including the elevations, sections, roof structure, and details for doors and windows. This involves careful attention to architectural precision and an understanding of construction techniques to ensure all elements are well-integrated and functional. This project not only aims to refine my technical drawing skills but also deepens my understanding of structural systems and material applications in residential architecture.
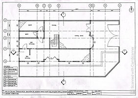
I began by researching online and selected a double-storey terraced house in Shah Alam, Selangor Darul Ehsan. I analysed its floor plan and construction details, referencing online resources and books to draught accurate architectural drawings. After completing the initial work, I consulted my tutor for feedback and suggestions, which helped me refine and improve the overall quality of the project.
Drawings








Model




Self-Reflection
Through this project, I gained valuable knowledge about building materials and guidelines, particularly for residential buildings. I developed a deeper understanding of construction details, learning about the structural components involved in building construction and their practical applications in the construction industry. This experience provided me with a clearer perspective on how different materials and methods come together to create a functional and durable structure.
I also acquired the skill of manually draughting architectural drawings in a standard and precise manner. This process taught me the importance of accuracy and clarity in architectural representation. One of the most enjoyable aspects of the project was creating the cake slice model, which showcased the materials and construction details of the building. This hands-on task allowed me to explore and experiment with various model-making materials, making it a fun and enriching experience.
Additionally, with the guidance of my tutor, I referred to "Building Construction Illustrated – Fifth Edition by Francis D.K. Ching". This book was an invaluable resource, helping me gain a deeper, clearer, and more comprehensive understanding of construction concepts and techniques.
I am deeply grateful to Mr. Siva for his thoughtful suggestions and constructive feedback during the tutorial sessions. His guidance was instrumental in helping me overcome challenges and achieve better results throughout the project.